土地情報・中古物件
ESTATE & USED HOUSES
中古
音更町 駒場本通り5【中古住宅】
河東郡音更町駒場本通5丁目28
\リノベに最適/中古住宅600万

価格
750万円
格安物件でフルリノベにオススメ!
キッチン。UB・洗面・WCはリフォーム済みなので
そのまま暮らすこともOK!
エアコン・ストーブ付き
家横には物置件ガレージもついてます。
※土地の分筆可能です。ご相談ください。
| 物件名 | 音更町 駒場本通り5【中古住宅】 |
|---|---|
| 所在地 | 河東郡音更町駒場本通5丁目28 |
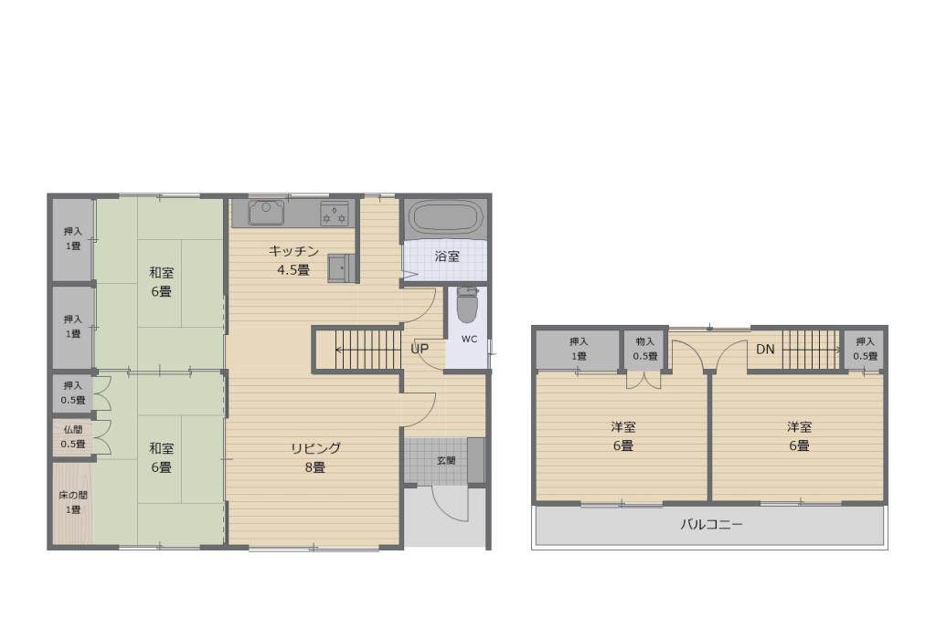
| 間取 | 4LDK |
| 接道 | 南西 |
| 敷地面積 | 731.46m2(221.27坪) |
| 建物面積 | 89.10m2(26.95坪) |
| 築年 | 昭和55年 |
| 構造 | 木造 |
| 間取り詳細 | 4LDK |
| 設備状況 | キッチン。UB・洗面・WCはリフォーム済み |
| 駐車場 | あり |
| 用途/地目 | 都市計画区域外 |
| 建蔽/容積 | 0 |
| 地区計画/法令制限 | なし |
| 現況 | 空き |
| 引き渡し | 即時 |
| 取引態様 | 専任 |
| 仲介料 | ¥330,000(税込) |
お問い合わせ TEL 0155-49-3030
